MAXIMUM ENERGY UTILIZATION
Made of high-quality steel, the body and front are resistant to very high temperatures.
Efficient combustion and longer heat retention thanks to the combustion chamber lined with TERMOTEC – a heat-accumulating material that increases the temperature inside the chamber.
A special water jacket system allows heat recovery from the flue gases and transfers it to the heating system, ensuring high energy efficiency of the insert.
Built-in coil. The water jacket body is reinforced with pins. Inlet/outlet connection 1/2.
Stable and stress-resistant fireplace doors made of closed profile. The door gasket is placed in a profiled channel, ensuring proper adhesion and preventing it from falling out during operation.
Two-deflector system that extends the flue gas path, making combustion more ecological.
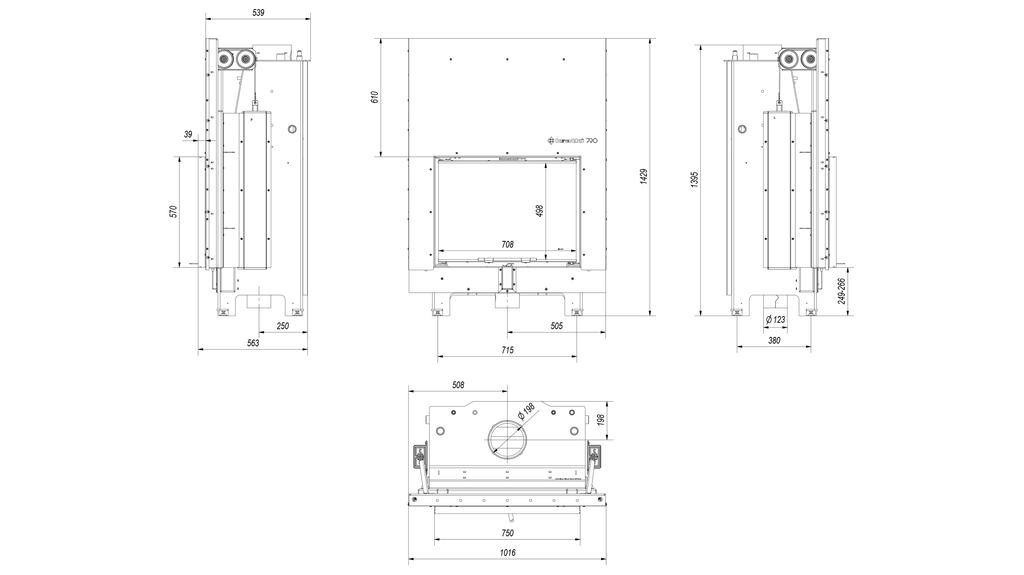
Air supplied exclusively from the outside through a built-in 125 mm air inlet with damper. Regulation via a single controller, eliminating errors from improper use.
Triple air supply system: primary air directed to the combustion plate; secondary air supplied through openings in the back wall. Additionally, a clean glass system (air curtain) is used.
SAFETY AT THE HIGHEST LEVEL
Excellent tightness thanks to solid welds made in a noble gas shield.
Steel elements laser-cut using modern equipment and bent on CNC presses.
The insert front is equipped with heat-resistant ceramic that withstands up to 660°C.
CONVENIENT USE
Grate-free insert – combustion on ash, meaning fuel burns down to fine ash with minimal residue. Heat energy is maximized. The bottom plate is significantly lowered relative to the door.
Lift-up door system – glass rises upwards, based on counterweights with steel cables running on bearing wheels, ensuring smooth, quiet, and reliable operation. Doors move a few millimeters from the body, protecting the seal. When closed, they are pressed tightly into the frame, ensuring airtightness.
Thanks to lift-up and drop-down doors, larger wood loads can be inserted. An additional mechanism allows side opening of the glass for easy cleaning.
Soot build-up is reduced thanks to the clean glass system (air guide).
MODERN DESIGN
Decorative glass pane resistant up to 660°C, giving the fireplace a modern and elegant appearance while optically enlarging the insert front.